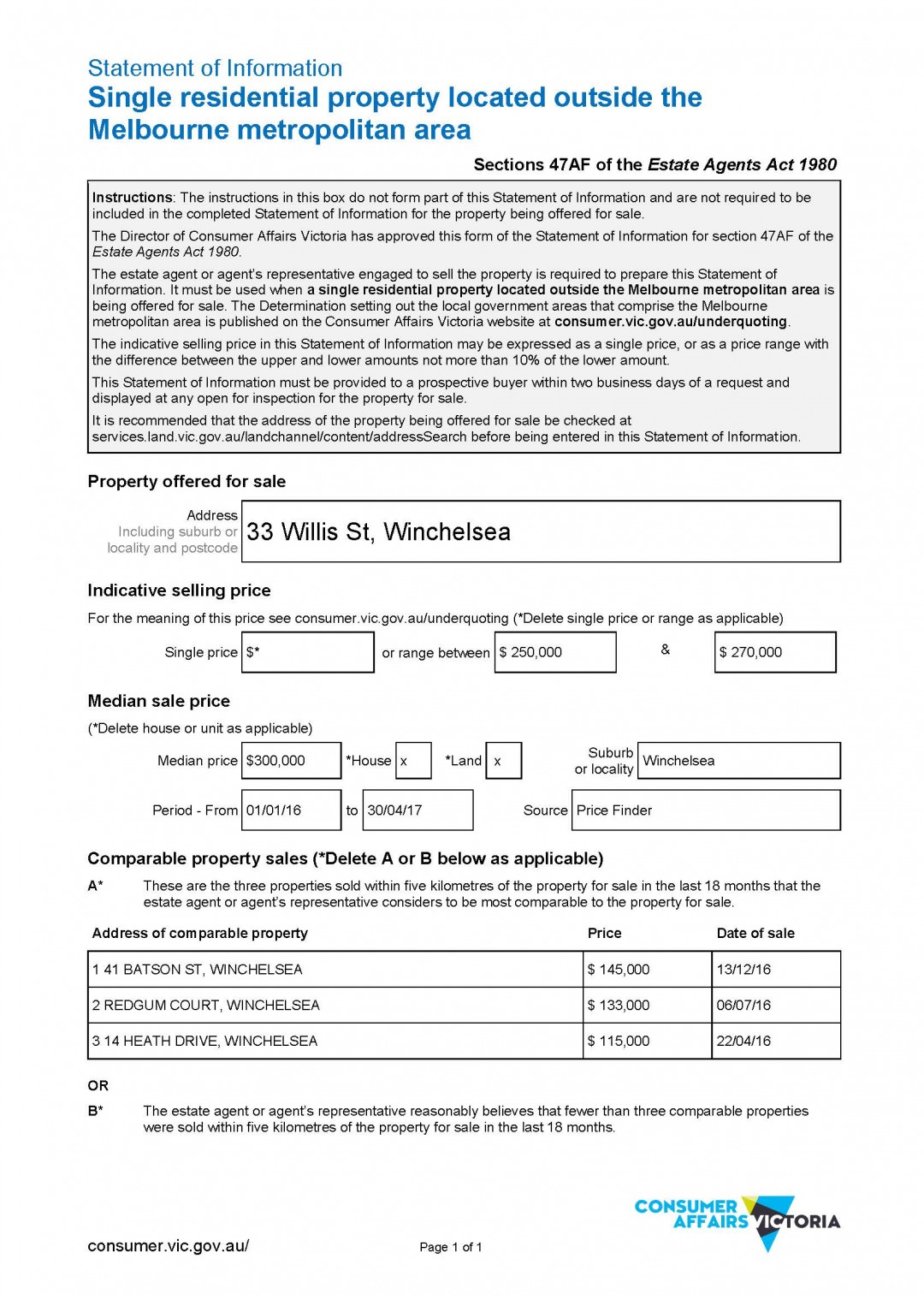
Winchelsea

33 Willis Street

Prime Position awaits your imagination

Rarely does a site with such diverse opportunity and potential become available, the high profile site is located on the busy dual Princess highway in the central area of Winchelsea. Permit in place for a drive through coffee shop on the 732m2 corner block facing the Princess Highway and two additional townhouse sites of 403m2 and 404m2.
For sale separately or as a whole.

Opposite the Winchelsea Medical and within walking distance of all the town amenities. Winchelsea is seeing huge growth, this site provides great expose to the high volume of traffic on the dual Princess Highway the two townhouse blocks are set back from the highway facing Jackson Street. Power water and sewerage connected to all blocks

• Outstanding development potential
• Total land area 1539m2
• Highway exposure
• Two street frontages
• Natural gas, broadband available
• Services connected

Sold for $460,000

 

Property Features

  • Property ID
    18022765

Contact

Share